Imbersago: entro il 2020 sorgerà la nuova casa della P. Civile. Il rivestimento con alberi abbattuti nella tempesta a Predazzo
I volontari dell'AVPC di Imbersago con gli amministratori di Calco, Imbersago e Brivio e il progettista della nuova sede
Dal '96 ad oggi il supporto nelle più devastanti calamità successe in Italia non è mai mancato, nonostante le difficoltà logistiche abbiano spesso reso più arduo il loro compito. I volontari dell'AVPC di Imbersago, che opera anche nei Comuni di Calco e Brivio, meritavano perciò una nuova sede.
VIDEO
La nuova sede dell'AVPC di Imbersago nell'area polifunzionale di via Resegone
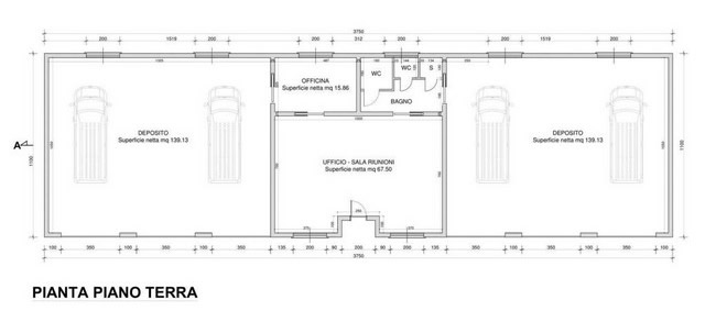
Lo sanno bene gli amministratori dei tre paesi che, anche grazie al supporto di progettisti che hanno messo a disposizione il loro tempo e le loro competenze senza chiedere nulla in cambio, negli ultimi mesi hanno lavorato all'unisono per creare le condizioni al fine di consegnare alla Protezione Civile una casa tutta sua e non più in affitto. Arriverà nel 2020, sarà situata nell'area polifunzionale di via Resegone, che a quel punto - in caso di emergenza - potrà tranquillamente essere adibita a campo tende in grado di ospitare centinaia di sfollati, e avrà tutto ciò che un'associazione come l'AVPC imbersaghese necessita per poter operare al meglio: una superficie totale di 412,50 m2, due depositi da 139,12 m2 ciascuno accessibili da sei portoni sezionali a scorrimento verticale, un'officina, uno spogliatoio e una sala operativa.
La piantina del primo e unico piano della struttura
Nella serata di venerdì 15 novembre la sala consiliare del Municipio di Imbersago ha ospitato la presentazione ufficiale del nuovo progetto, in presenza di tante tute gialle e - purtroppo - non troppi cittadini. Nel suo intervento, il presidente dell'AVPC Luigi Comi non ha nascosto le difficoltà che il ''suo'' sodalizio deve affrontare quotidianamente, a partire dal coinvolgimento della cittadinanza, che si augura di vedere numerosa almeno in occasione del pranzo conviviale e di raccolta fondi per l'opera che l'area polifunzionale ospiterà domenica 24 novembre.
Il sindaco di Imbersago Fabio Vergani
''Dal '96 ad oggi la nostra associazione è sempre cresciuta'' ha spiegato. ''Siamo partiti da un gruppetto di volenterosi che voleva partecipare ai soccorsi in occasione di una devastante alluvione avvenuta in Piemonte ed oggi ci troviamo in più di 30 volontari, con un buon numero di automezzi, acquistati e ottenuti con la partecipazione a diversi bandi. E soprattutto siamo associati con tre Comuni con una popolazione totale di 13mila abitanti, che non è poco. In certi momenti, quando la calamità chiama, non c'è tempo per pensare ma bisogna già farsi trovare pronti.
Oggi abbiamo una certa difficoltà operativa avendo alcuni mezzi in un magazzino a Brivio, in via Como, in cui l'accesso e l'uscita risulta piuttosto faticoso. Quando ci muoviamo con i nostri carrelli siamo veramente stretti. Abbiamo anche un box ad Imbersago dove custodiamo anche alcune attrezzature, ma siamo veramente saturi. C'è poi la centrale operativa in Municipio a Brivio. Il Comune ce la garantisce da anni, ma se fossero vuote quelle due stanze farebbero comodo anche agli uffici''. Con la nuova sede, l'AVPC imbersaghese potrà finalmente dimenticare le complicazioni a cui ormai è abituata. Il motivo per cui sarà situata nell'area polifunzionale di Imbersago lo ha spiegato, intervenendo dopo Comi, il sindaco del paese Fabio Vergani. ''Qui ci sono tutte le caratteristiche di cui ha bisogno una centrale della Protezione Civile'' ha commentato.
''L'area polifunzionale è innanzitutto circondata da numerosi parcheggi e ospita una cucina funzionante in grado di sfornare qualche centinaio di pasti caldi ogni giorno. In occasioni straordinarie può dunque trasformarsi in breve tempo in un campo tende. Affianco, inoltre, c'è il centro sportivo con docce e servizi igienici''. La nuova sede operativa dell'AVPC sarà dunque ad Imbersago perché in quell'area è staro individuato il luogo più strategico per far sorgere un edificio simile. Lo spazio in cui verrà costruito sarà concesso dal Comune di Imbersago per alcuni decenni all'associazione, che si farà carico anche delle spese per la sua realizzazione.
Il sindaco di Calco Stefano Motta
La formula è stata studiata attentamente dalle tre Amministrazioni comunali coinvolte, come spiegato venerdì sera dal sindaco di Calco Stefano Motta. ''Ci siamo resi conto che non valeva più la pena che la Protezione Civile continuasse a pagare l'affitto per ricoverare i suoi mezzi, che peraltro abbisognano spesso di manutenzione e devono sempre essere disponibili per ogni intervento'' ha spiegato. ''In buona sostanza abbiamo pensato di investire i soldi che i Comuni garantiscono all'associazione con il contributo annuale, ovviamente anche per le operazioni che svolge sul territorio, rendicontate con attenzione, in un investimento più ampio, per realizzare la sede''.
Roberto Bonfanti
Motta ha poi tenuto a sottolineare che l'opera inciderà molto anche a livello culturale. ''Questo non sarà solo un intervento fatto di mattoni, muri e impianti'' ha aggiunto. ''Sarà innanzitutto un'opera culturale, perché per la gente sia ancora più visibile l'impegno della Protezione Civile. Questo è l'antidoto all'involuzione della cultura della prevenzione e dell'intervento''. Un pensiero al quale si è unito, verso la fine dell'incontro, anche Giovanni Ghislandi, ex sindaco imbersaghese che aveva lavorato, nel 2018, alla nuova convenzione con l'AVPC e i Comuni di Calco e Brivio, l'atto che ha sostanzialmente dato il là alla realizzazione della nuova opera, il quale ha definito la nuova sede ''un'operazione modello'' per tante altre Protezioni Civili del territorio.
Al microfono l'ex sindaco imbersaghese Giovanni Ghislandi
A fornire i dettagli dell'edificio è stato dunque Roberto Bonfanti, il tecnico con studio a Merate che si è offerto di redigere volontariamente il progetto. ''Parliamo di una struttura molto semplice - ha spiegato - realizzata con una fondazione perimetrale in cemento armato con pilastri negli angoli, alcuni contrafforti e solaio prefabbricato con resistenza al fuoco di 120 minuti''. L'intera struttura, che sarà dotata di pannelli fotovoltaici, sarà ricoperta con moduli di legno ricavato dagli alberi abbattuti nella tempesta che nell'ottobre del 2018 aveva spazzato via migliaia di ettari di foreste alpine.
Quelli utilizzati per il rivestimento della nuova sede di via Resegone, in particolare, arriveranno da Predazzo, in Val di Fiemme. L'opera avrà un corso di circa 550 euro al m2, per un totale di circa 200mila euro. L'inizio dei lavori è previsto per la prossima primavera e dureranno all'incirca sei mesi.
A.S.
























