Novate: in commissione la nuova cucina dell'oratorio
Un intervento che, in termini quantitativi, è di poco conto (si parla infatti di poco meno di 30 metri quadrati) ma che per la comunità di Novate rappresenta un'opera importante nell'ottica della vita sociale e delle attività che si svolgono in oratorio.

Nel corso della commissione ambiente e territorio che si è svolta nel tardo pomeriggio di martedì 3 marzo, l'assessore Mattia Muzio ha illustrato brevemente la sostanza dei lavori che, come prevede la normativa, dovranno poi passare al vaglio del consiglio comunale.

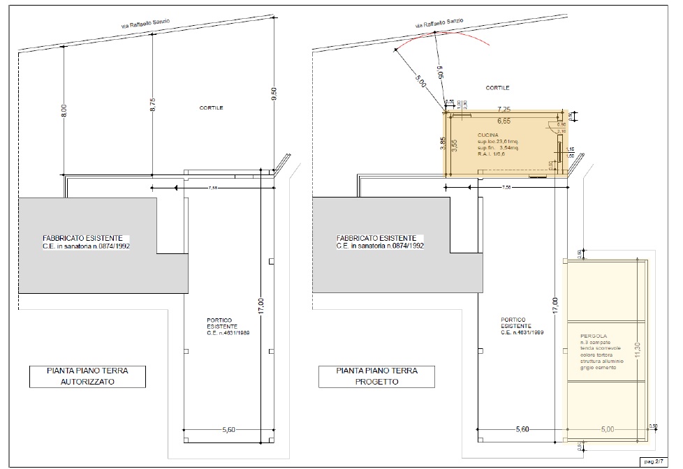
La parrocchia, guidata da don Eugenio Folcio, ha fatto richiesta per l'ampliamento di una porzione dell'oratorio, in particolare della zona che si affaccia su via Raffaello Sanzio. Si tratta, nella fattispecie, della creazione di una cucina in muratura di 27 metri quadrati, dove attualmente già esiste un'area adibita a un servizio simile, ma quello che sarà realizzato sarà più moderno e funzionale. nell'occasione sarà anche sistemata una zona ora ricoperta da tettorie, attreverso il posizionamento di un pergolato con tende.
CLICCA QUI per le slides esplicative

Nel corso della commissione ambiente e territorio che si è svolta nel tardo pomeriggio di martedì 3 marzo, l'assessore Mattia Muzio ha illustrato brevemente la sostanza dei lavori che, come prevede la normativa, dovranno poi passare al vaglio del consiglio comunale.

La parrocchia, guidata da don Eugenio Folcio, ha fatto richiesta per l'ampliamento di una porzione dell'oratorio, in particolare della zona che si affaccia su via Raffaello Sanzio. Si tratta, nella fattispecie, della creazione di una cucina in muratura di 27 metri quadrati, dove attualmente già esiste un'area adibita a un servizio simile, ma quello che sarà realizzato sarà più moderno e funzionale. nell'occasione sarà anche sistemata una zona ora ricoperta da tettorie, attreverso il posizionamento di un pergolato con tende.
CLICCA QUI per le slides esplicative
S.V.
























