Osnago: le Consulte avviano il percorso di discussione sul futuro della ''Cassinetta''


Il coinvolgimento della popolazione è partito il 12 maggio con la riunione delle Consulte congiunte Coesione sociale e Urbanistica, formate da amministratori locali, rappresentanti delle associazioni e cittadini comuni. "L'importante è cominciare con il piede giusto. Far partire al meglio questo progetto per tener conto effettivamente dei reali bisogni sociali del territorio. Non so se servirà aggiornare una mappatura. Quello fatto negli anni addietro potrebbe aver avuto delle modificazioni" ha introdotto il presidente della Consulta Coesione sociale Claudio Caglio. Il quale ha avanzato la possibilità di offrire servizi non solo agli anziani ma anche ai disabili, un interesse che potrà essere portato all'attenzione della collettività dall'associazione A.G.A.P.H. APS.

Il sindaco Paolo Brivio si è più volte dimostrato aperto ad accogliere il più ampio ventaglio di ipotesi: "Non è un progetto chiavi in mano, ma l'inizio di un percorso rispetto al quale l'amministrazione ha delle idee e ha elaborato delle proposte". Il primo cittadino ha affermato che sarà richiesto il contributo dei soggetti che rappresentano il territorio e la comunità locale, dalle associazioni ai semplici cittadini. L'avanzamento della progettazione avverrà inoltre in cooperazione con le istituzioni territoriali che si occupano di welfare, l'Ambito distrettuale e ATS Brianza. Sarà coinvolto poi il terzo settore: imprese sociali o cooperative che già si occupano di servizi sociali.

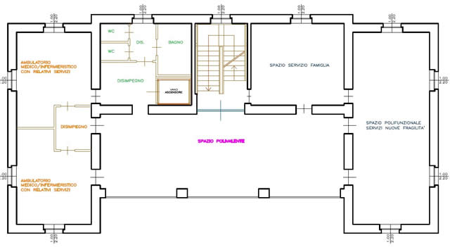
Il finanziamento da 1,9 milioni di euro riuscirebbe a sanare la situazione dell'edificio storico. Non verrebbe realizzata nuova volumetria tramite la costruzione di due nuovi edifici che sono contemplati nel PGT in vigore e nemmeno tramite l'interramento dei parcheggi. L'autorimessa utile per il trasporto sociale offerto dall'associazione "Io per Osnago" verrebbe prevista nell'area attualmente a prato. Idem per il deposito attrezzi. Punti saldi, che già hanno avuto il via libera ufficioso della Soprintendenza, sono il secondo ingresso da via papa Giovanni XXIII; l'ampliamento delle scale interne in ottemperanza alle normative per la sicurezza; la realizzazione di un vano ascensore; la presenza di vetrate nella zona centrale dell'edificio attualmente aperta, priva di pareti.
Sulla composizione degli spazi interni l'amministrazione sembrerebbe non porre particolari paletti. Come indicazione di massima, avrebbe pensato di destinare il piano terra ad attività diurne e aggregative per le associazioni. Il primo piano accoglierebbe gli ambulatori medici ed eventualmente degli spazi per la consulenza sui servizi territoriali di presa in carico della fragilità. Infine al secondo piano verrebbero realizzati quattro mini alloggi protetti. Tuttavia non si esclude che anche al primo piano si riesca a destinare dello spazio per degli appartamenti "leggeri".

Se il finanziamento da 1,9 milioni coprirebbe gli interventi di edilizia, per lo sviluppo del progetto sociale ci sarebbero altre cinque potenziali linee di contribuzione economica, che si stanno sviluppando a livello di Ambito Distrettuale. A questo proposito il sindaco ha affermato: "Nel dibattito sulla definizione dei progetti noi abbiamo avuto un ruolo. Abbiamo dato il nostro contributo a una riflessione, insieme ad altri Comuni, per cui a livello territoriale sanno che noi vorremmo candidare la Cassinetta ad essere un polo dove si organizzano servizi come quelli che abbiamo discusso stasera". La parola data in sede di Ambito sarebbe dunque un altro vincolo alla discussione in Consulta.
Consulta che ha mostrato le prime reazioni al progetto sin qui delineato. Claudio Caglio ha domandato quali altre strade il Comune intenderà percorrere qualora la Cassinetta non sarà beneficiaria del contributo da 1,9 milioni di euro. Il sindaco ha fatto intendere che si potrà ricorrere agli oneri di urbanizzazione, dunque a risorse proprie dell'Ente, qualora ci fossero sviluppi su un Ambito di Trasformazione. In un passato Consiglio comunale tuttavia Brivio aveva asserito che la situazione economico-finanziaria del Comune è tale da poter accogliere anche nuovo indebitamento.

I presidenti delle Consulte Canzio Dusi (Urbanistica) e Claudio Caglio (Coesione sociale)
Maria Grazia Arlati ha sostenuto che la discussione sul progetto della Cassinetta potrebbe essere il volano per una valutazione più complessiva dei bisogni sociali ad Osnago. Ha dunque suggerito di non fermarsi all'immobile di via Mazzini ma di monitorare altri luoghi che potrebbero essere ancora più compatibili per i portatori di handicap. Senza citarlo, ha lasciato pensare al bene di via delle Robinie, confiscato in via definitiva più di quattro anni fa.


Messaggio colto dal sindaco Paolo Brivio che ha però commentato: "A Osnago ci possono essere altre soluzioni. Abbiamo congelato un attimo dopo il tempo che si è un pochino rallentato l'anno scorso e dopo la manifestazione di interesse dei carabinieri, un'attenzione del nucleo forestale dei carabinieri sullo stabile requisito alla mafia. Attendiamo da loro una risposta per capire se loro hanno un interesse reale a collocarsi lì o se la cosa ritorna nel perimetro delle responsabilità e delle disponibilità del Comune di Osnago. Anche se dovessimo accondiscendere, cosa che io personalmente farei, alla collocazione di una stazione dei carabinieri in quel luogo, ci possono essere anche altre soluzioni". Per dovere di precisione facciamo presente che il Comune potrebbe in qualsiasi momento avanzare all'Agenzia dei beni confiscati la domanda per il passaggio gratuito al patrimonio comunale dell'appartamento in questione per una destinazione sociale. Sarebbe poi l'Agenzia a scegliere tra la proposta del Comune, mai avanzata formalmente, e quella dei Carabinieri forestali.
Guido Raos ha lanciato lo stimolo per riflettere sull'ipotesi di creare uno spazio mensa all'interno della Cassinetta, mentre Claudio Caglio ha auspicato che il progetto sviluppi anche delle reti intergenerazionali. Più critico Luigi Mauri, candidato non eletto del gruppo di minoranza Orgoglio Osnago, secondo il quale il progetto dovrebbe essere ampiamente rivisto per risolvere delle "lacune" e avvicinare la Cassinetta a uno "standard qualitativo saliente". Sempre dal fronte della minoranza Vittorio Bonanomi ha bollato la discussione sin qui emersa come il compimento dell'assunto "la fantasia al potere". Il sindaco ha replicato sostenendo che la minoranza voglia politicizzare lo spazio delle Consulte. Una nuova seduta potrebbe essere convocata tra un mese.























